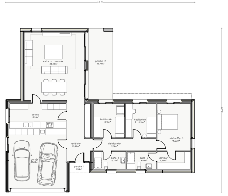
Modelo M4
Planta baja luminosa con garaje para dos coches. Un único módulo de construcción horizontal con un aparcamiento para dos coches. Una vivienda de tres habitaciones superiores a 12 m2, dividida claramente en dos zonas, de día y de noche. Cuenta con un porche de grandes dimensiones.



